Create Your First Project
Start adding your projects to your portfolio. Click on "Manage Projects" to get started
FB House Extension
Location
Southwark, London
Date
Summer 2024
Project type
House Extension
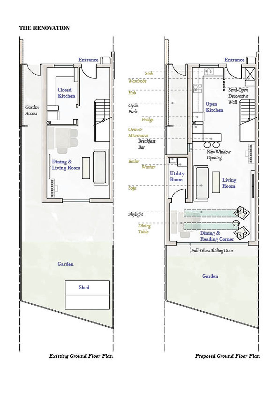
This residential extension reworks a constrained ground-floor plan to create a brighter, more open and better-connected living space. The removal of the wall between the kitchen and living area improves circulation, while a semi-open partition retains a degree of separation. A side extension provides a dedicated utility and laundry room, allowing services to be relocated and the main interior to function more efficiently. New rooflights bring daylight further into the plan, improving the quality of the internal spaces. Externally, a sedum roof enhances environmental performance, while the removal of the existing shed allows for a larger garden and integrated outdoor storage.







